De Thijmse Berg

Kavel 223 - Luxe 4 persoons cottage

 

Prijsschema

Complete inrichtingInclusief
 

Te koop! Exclusief eigen grond. 

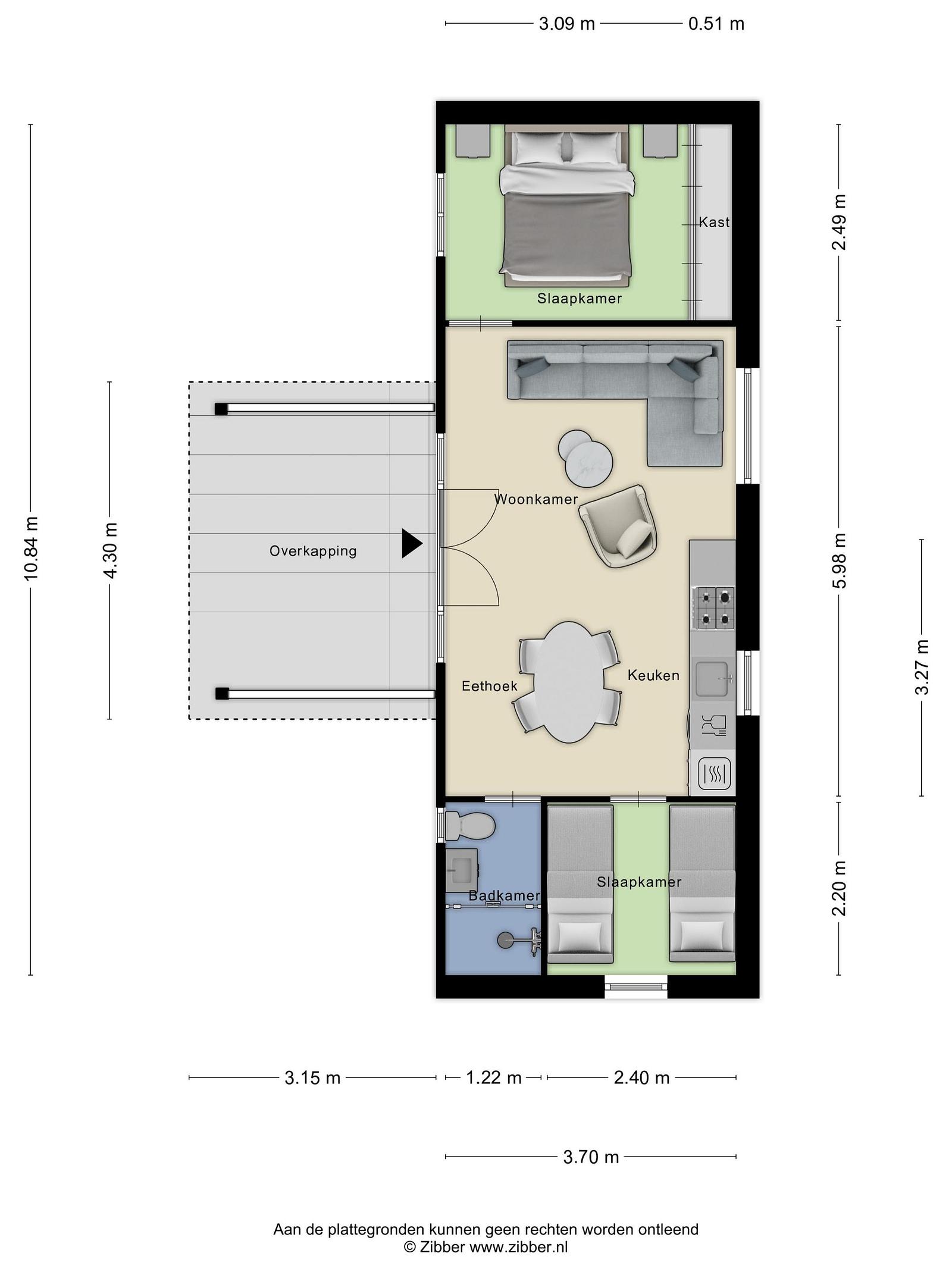
Sfeervol, instapklaar en volledig in harmonie met de natuur: deze charmante 4-persoons cottage op De Thijmse Berg is een verborgen parel. Met circa 45 m² woonoppervlakte, twee smaakvol ingerichte slaapkamers en een royale overkapping aan de voorzijde biedt deze woning het perfecte samenspel van comfort en buitenleven

Binnen geniet je van een moderne, warme afwerking: een eigentijdse keuken, een luxe badkamer met toilet en een sfeervolle woonkamer met karakteristieke schuine plafonds. De dubbele openslaande tuindeuren verbinden de woonkamer naadloos met de overdekte veranda en de groene tuin rondom. Of je nu zoekt naar een romantisch tweede huis voor ontspannen weekenden, of een investering in rust en natuur, hier voel je je direct thuis. De woning is volledig instapklaar en met veel zorg ingericht, inclusief een eigen parkeerplaats op het perceel. 

Bij binnenkomst valt meteen de doordachte indeling en het gezellige karakter van de woning op. Vanuit de entree stap je de lichte woonkamer binnen, waar het zitgedeelte uitnodigt tot ontspanning. De open keuken is voorzien van moderne apparatuur, waaronder een gasfornuis, afzuigkap, combi-oven, vaatwasser en koel-/vriescombinatie. Via de dubbele tuindeuren loop je zo de overkapping op, een perfecte plek voor een glas wijn bij zonsondergang of een rustig ontbijt omringd door groen. 

Aan de achterzijde vind je twee comfortabele slaapkamers, elk met voldoende ruimte en praktische opbergmogelijkheden. De badkamer is modern en stijlvol afgewerkt, met een douche, wastafelmeubel en toilet. 

De voorzijde van de woning biedt een romantische, overkapte veranda, omringd door de natuurlijke schoonheid van het bos. Hier geniet je van lange zomeravonden of een knusse ochtendkoffie terwijl de zon langzaam door de bomen schijnt. 

Hier verblijf je niet zomaar in een cottage, maar ín het bos, een unieke plek waar stijl, comfort en natuur samenkomen. Een zeldzame kans voor wie op zoek is naar een plek vol rust, romantiek en luxe. Ervaar zelf wat deze bijzondere cottage zo aantrekkelijk maakt. 


 

Kenmerken

StatusTe koop
Investeringsrendement labelInvesteringskans
Aantal kamers3
Aantal slaapkamers2
Aantal badkamers1
Voor aantal personen4
Bouwjaar2016
Woonoppervlakte45 m2
Oppervlakte perceel180 m2
Huisnummer op park223
Externe bergruimte
6m²
 

Plattegrond

Benieuwd naar deze woning? Neem gerust contact met ons op!